обзор
тур
планировки
слайд-шоу
карта
контакты
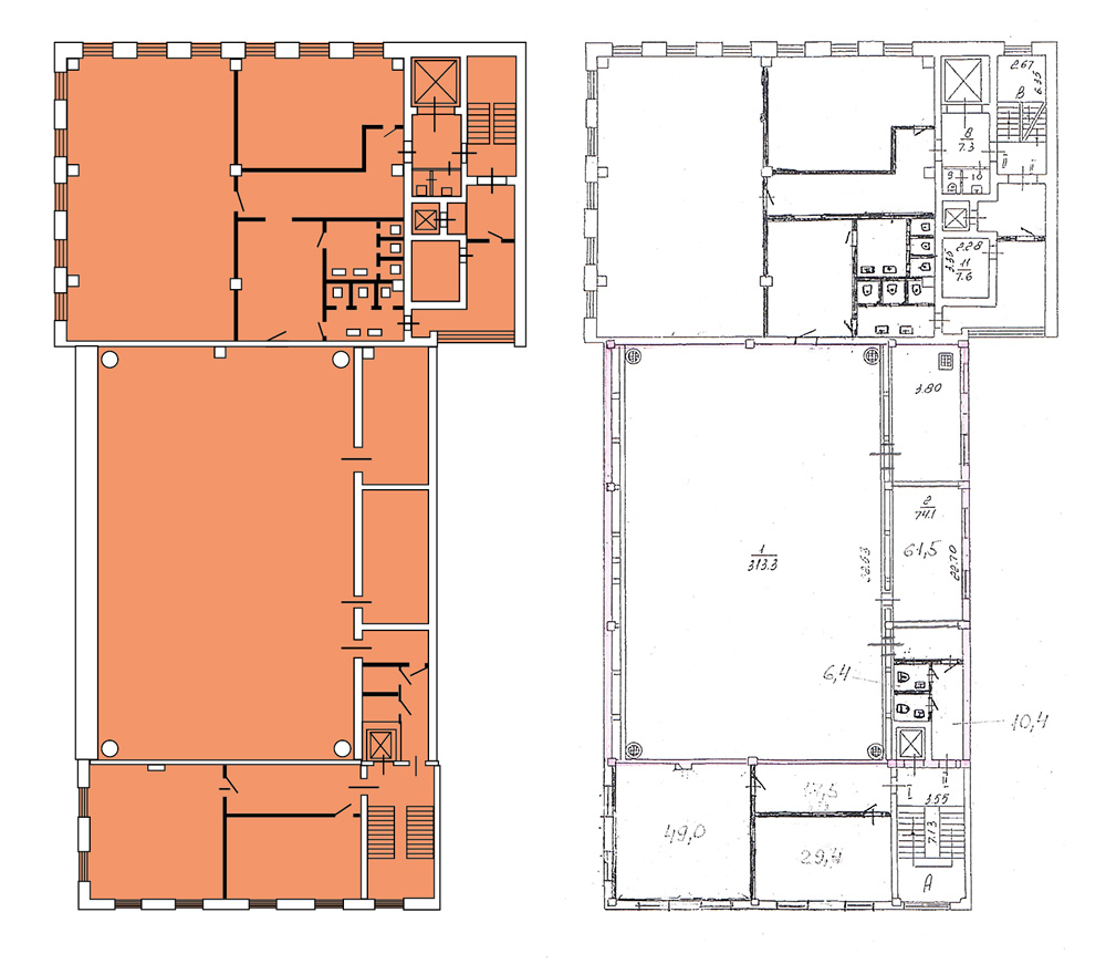
Планировка офисного помещения