обзор
тур
галерея
планировки
карта
контакты
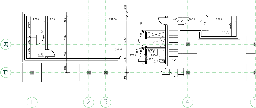
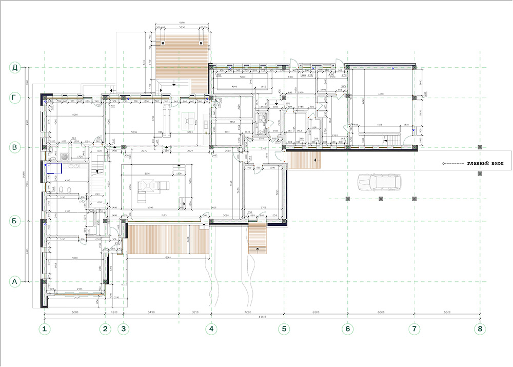
Планировки дома
1-й этаж
2-й этаж
Бункер